Описание
Агрегат поддержания давления АПД 50,0 — это специализированное техническое устройство, созданное для стабилизации рабочего давления в емкостях, предназначенных для длительного хранения или транспортировки сжиженного диоксида углерода. Основная задача аппарата — компенсировать увеличение давления, возникающее из-за внешних тепловых воздействий, что обеспечивает практически неограниченный период хранения жидкой углекислоты без испарения и потерь вещества.
Оборудование используется совместно со стационарными хранилищами и передвижными цистернами. АПД-50,0 работает с жидкой углекислотой первого сорта, соответствующей ГОСТ 8050-85, и рассчитан на эксплуатацию с емкостями РДХ номинальным объемом 50 м3, рабочее давление в которых составляет не менее 18 кгс/см2.
Преимущества АПД от СпецКриоГаз
Приобретая агрегаты поддержания давления АПД-50,0 у компании «СпецКриоГаз», вы получаете современное и надежное решение, которое имеет ряд ключевых достоинств:
- Автоматизированное управление: функционирование в полностью автоматическом режиме без необходимости постоянного контроля оператора.
- Универсальность размещения: допускается установка внутри производственных зданий или на внешних площадках под навесом.
- Широкий температурный диапазон: стабильная работа при температурах окружающей среды от -40°С до +40°С.
- Качественные компоненты: применение комплектующих от ведущих мировых производителей.
- Развитая система управления: использование электронного блока для визуального контроля параметров и точной регулировки давления.
- Комплексная защита: электрическая схема включает защиту от короткого замыкания, перепадов напряжения, а также аварийное отключение при неполадках компрессора или утечке хладагента.
- Экологическая безопасность: применение озонобезопасного хладагента R404A.
- Быстрый запуск: для начала работы требуется только подключение к электросети и присоединение коммуникаций СО2.
- Удобство обслуживания: конструкция обеспечивает легкий доступ ко всем узлам для проведения сервисных работ.
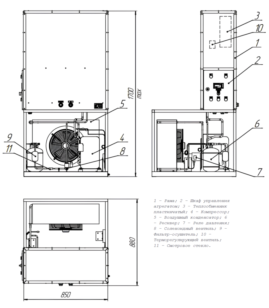
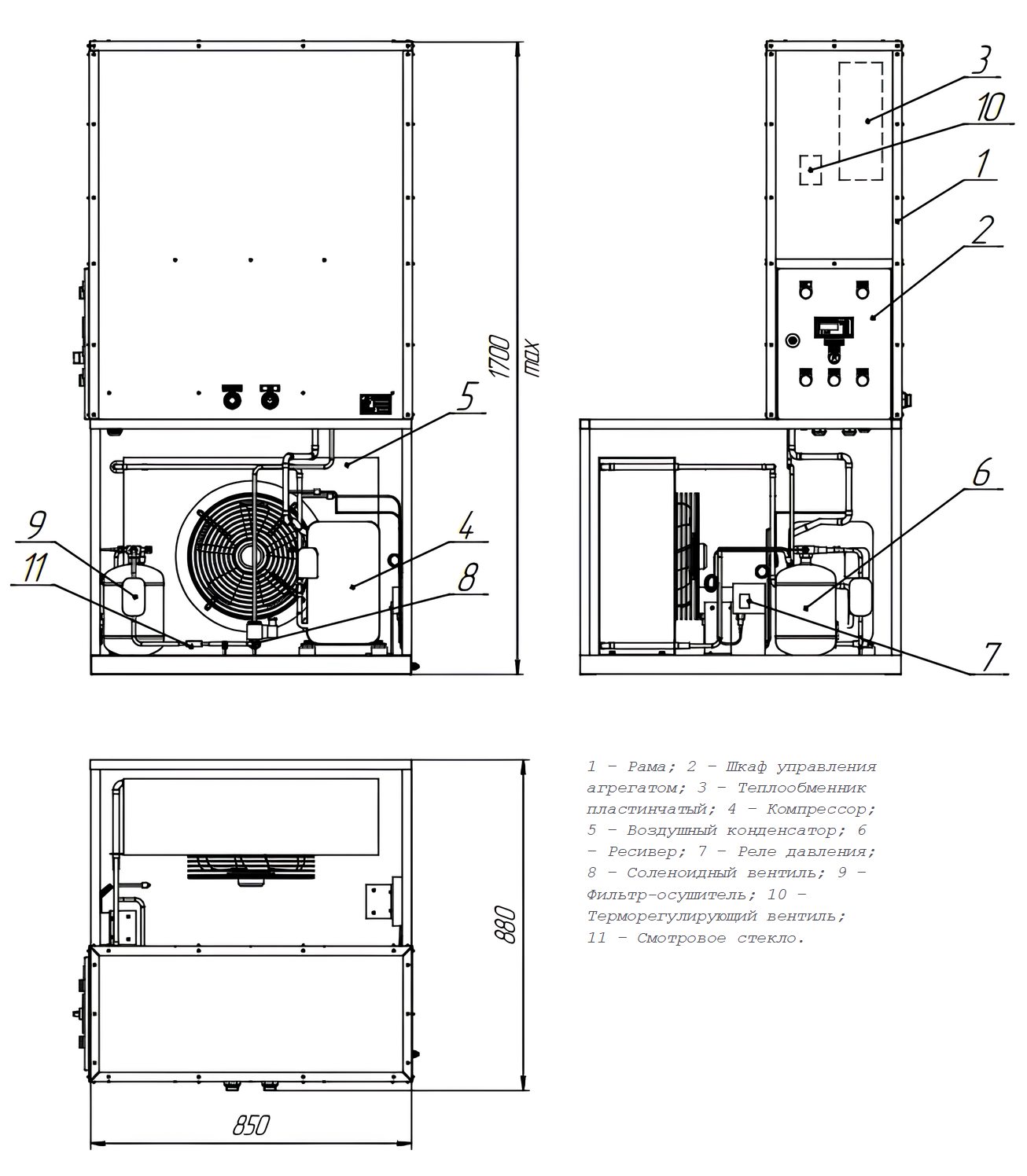
Модификации АПД-50,0 с внешним и внутренним теплообменником
Компания СпецКриогаз Екатеринбург предлагает две основные модификации агрегата, адаптированные для различных типов криогенных систем хранения углекислоты:
АПД-50,0 с внутренним теплообменником
Эта версия холодильного агрегата предназначена для резервуаров, которые изначально оборудованы встроенными медными трубчатыми теплообменниками. В таких системах стабилизация давления осуществляется путем охлаждения и последующей конденсации газовой фазы СО2 прямо на поверхности внутреннего теплообменного элемента.
АПД-50,0 с внешним теплообменником
Данная модификация АПД используется для цистерн или резервуаров, не имеющих собственных теплообменников. Холодильный агрегат включает в себя полноценный компрессорно-конденсаторный блок и высокоэффективный пластинчатый теплообменник, в котором происходит процесс конденсации паров диоксида углерода.
Обе версии проектируются и изготавливаются индивидуально, с учетом технических характеристик конкретной емкости заказчика.
Особенности эксплуатации АПД 50
Эксплуатация агрегата поддержания давления АПД-50,0 отличается высокой степенью автономности — он работает в полностью автоматическом режиме, не нуждаясь в постоянном наблюдении оператора. Конструкция устройства позволяет применять его в чрезвычайно широком диапазоне температур окружающей среды: от -40°С до +40°С. Агрегат является универсальным с точки зрения расположения: возможен его монтаж как внутри промышленных помещений, так и на открытых площадках под защитным навесом. Для приведения в рабочее состояние необходимо только подключение к электрической сети и присоединение коммуникаций, связывающих аппарат с резервуаром СО2.
Производитель обеспечивает техническую поддержку и сервисное обслуживание на протяжении всего жизненного цикла оборудования. Для подбора конфигурации и расчета параметров агрегата необходимо предоставить информацию о объёме емкости и рабочем давлении в системе.
Для оформления заказа и консультации обращайтесь в СпецКриоГаз: +7 (343) 226-92-90.










