Описание
Агрегат поддержания давления АПД-30,0 предназначен для поддержания заданного рабочего давления в резервуарах и цистернах для длительного хранения или транспортировки жидкой углекислоты. Он предотвращает рост давления вследствие внешних теплопритоков, обеспечивая неограниченный срок хранения СО₂ без потерь.
Оборудование используется со стационарными резервуарами (типа РДХ 30) и транспортными цистернами (типа ЦЖУ). АПД-30,0 работает с жидкой двуокисью углерода высшего и первого сорта по ГОСТ 8050-85 и предназначен для емкостей объемом 30 м³ с рабочим давлением не менее 18 кгс/см².
Особенности эксплуатации
Агрегат работает полностью в автоматическом режиме без участия оператора. Он рассчитан на эксплуатацию в широком диапазоне температур от -40°С до +40°С и может быть установлен как в помещении, так и на улице под навесом. Для ввода в эксплуатацию требуется только подключение к электросети и к коммуникациям с резервуаром СО₂.
Модификации АПД-30,0
Компания СпецКриогаз предлагает две модификации агрегата, ориентированные на разное криогенное оборудование:
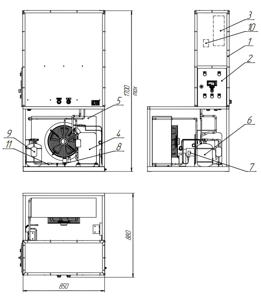
- АПД-30,0 с внутренним теплообменником: Предназначен для резервуаров, которые конструктивно имеют в своем составе медные трубчатые теплообменники. В таких системах понижение давления происходит путем захолаживания и конденсации газовой фазы на поверхности этого встроенного теплообменника.

1 – Рама; 2 – Шкаф управления агрегатом; 3 – Теплообменник;
4 – Компрессор; 5- Воздушный конденсатор; 6- Ресивер; 7- Реле давления; 8 – Соленоидный вентиль; 9 – Фильтр-осушитель; 10 – Терморегулирующий вентиль; 11 – Смотровое стекло.
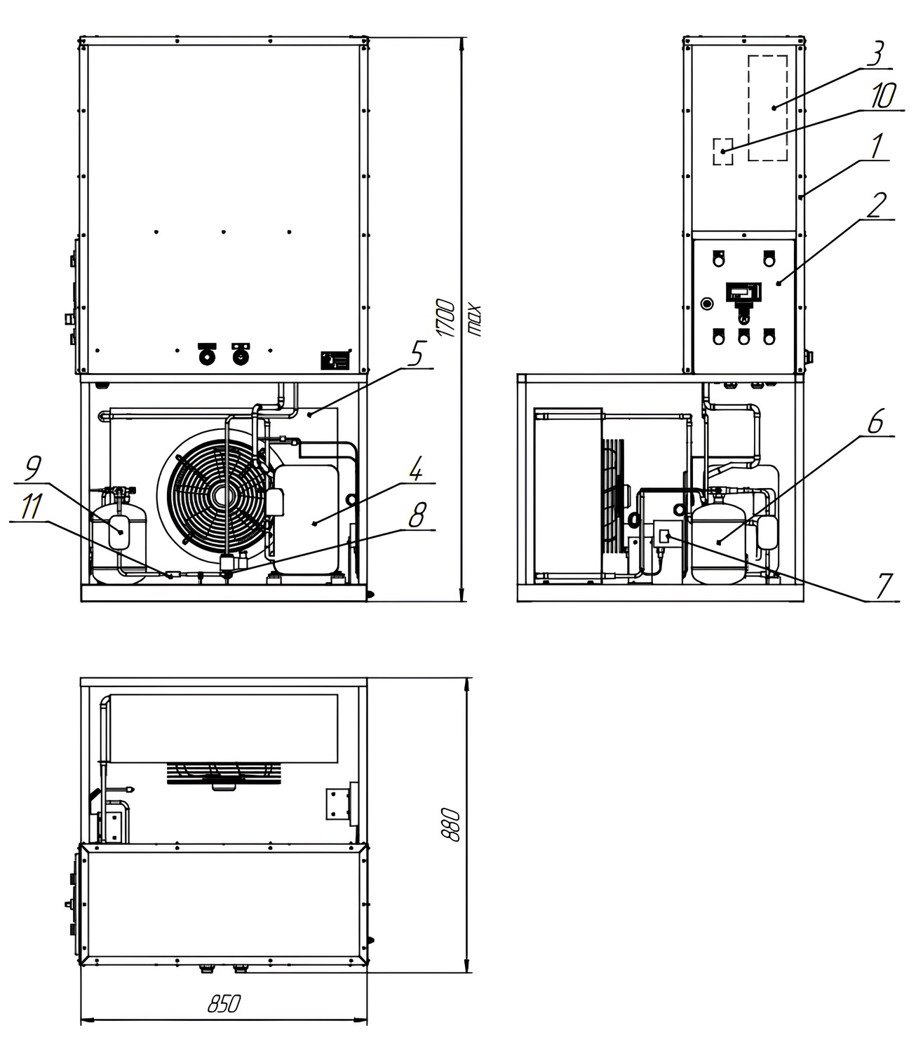
- АПД-30,0 с внешним теплообменником: Применяется для цистерн или резервуаров, не имеющих встроенных теплообменников. Агрегат включает в свой состав компрессорно-конденсаторный блок и высокоэффективный пластинчатый теплообменник, на поверхности которого и происходит конденсация паров СО₂.

1 – Рама; 2 – Шкаф управления агрегатом; 3 – Теплообменник пластинчатый;
4 – Компрессор; 5 – Воздушный конденсатор; 6 – Ресивер; 7 – Реле давления;
8 – Соленоидный вентиль; 9 – Фильтр-осушитель; 10 – Терморегулирующий вентиль;
11 – Смотровое стекло.
Обе модификации рассчитываются и изготавливаются под конкретную ёмкость заказчика.
Преимущества АПД от СпецКриоГаз
Выбирая агрегаты поддержания давления от СпецКриогаз Екатеринбург, вы получаете надежное и технологичное решение с рядом ключевых преимуществ:
- Два варианта исполнения: для стационарных резервуаров или для транспортных цистерн.
- Полная автоматизация: оборудование предназначено для непрерывной работы без присутствия обслуживающего персонала.
- Универсальность установки: возможен монтаж в помещении или на улице под навесом.
- Работа в широком температурном диапазоне: стабильная эксплуатация от -40°С до +40°С.
- Комплектующие мировых брендов: используются компоненты от ведущих производителей (Siemens, Danfoss, Copeland и др.).
- Цифровое управление: оснащен электронным блоком управления (ЭБУ) для визуального контроля и управления давлением.
- Комплексная защита: электрическая схема включает защиту от короткого замыкания, сбоев в сети, а также аварийное отключение при выходе из строя компрессора или утечке хладагента.
- Экологичность: работа на современном, озоносберегающем фреоне R404A.
- Простой и быстрый монтаж: для запуска требуется только электроэнергия и подключение к СО₂.
- Удобство обслуживания: продуманная конструкция обеспечивает легкий доступ для сервисного обслуживания.
СпецКриогаз Екатеринбург является ведущим поставщиком углекислотного оборудования, несколько десятков поставленных нами АПД успешно работают по всей России и за рубежом. Мы гарантируем адекватные сроки отгрузки, наличие запасных частей на складе и полное сопровождение документами, включая Декларацию ЕАЭС для эксплуатации на опасных производственных объектах (ОПО). Звоните +7 (343) 226 92 90








