Описание
Агрегат поддержания давления АПД 4,0 — это специализированное криогенное оборудование, предназначенное для автоматического поддержания заданного давления в резервуарах и цистернах с жидкой двуокисью углерода (углекислотой), еще его называют “углекислотный холодильник” или CO2-холодильник. АПД 4 гарантирует целостность криопродукта и его неограниченный срок хранения, полностью исключая потери.
Предназначен для резервуаров РДХ 4,0 объемом 4 м³.
Принцип работы и ключевые преимущества:
- Автоматическое поддержание давления: Агрегат работает в полностью автоматическом режиме без участия оператора. Понижение давления происходит за счёт захолаживания и конденсации газовой фазы CO₂ на поверхности высокоэффективного теплообменника.
- Универсальность применения: АПД-4,0 эффективно работает как со стационарными резервуарами для длительного хранения (РДХ), так и с транспортными цистернами.
- Сохранение качества продукта: Оборудование предназначено для работы с жидкой двуокисью углерода высшего и первого сорта по ГОСТ 8050-85. Холодопроизводительность агрегата полностью компенсирует внешние теплопритоки, предотвращая испарение продукта.
- Индивидуальный расчет: Каждый агрегат рассчитывается и изготавливается под конкретные параметры заказчика — объем емкости и рабочее давление, что обеспечивает максимальную эффективность и надежность.
- Соответствие стандартам: АПД-4,0 сопровождается Декларацией ЕАЭС, необходимой для эксплуатации на опасных производственных объектах (ОПО).
Модификации АПД 4
Для ваших задач доступны две конфигурации агрегата с внутренним или внешним теплообменником:
- АПД-4,0 внутренний — для горизонтальных и вертикальных резервуаров РДХ, конструктивно имеющих в своем составе медные трубчатые теплообменники.
- АПД-4,0 внешний — для горизонтальных цистерн и резервуаров, не имеющих встроенных теплообменников. Комплектуется собственным компрессорно-конденсаторным блоком и пластинчатым теплообменником.
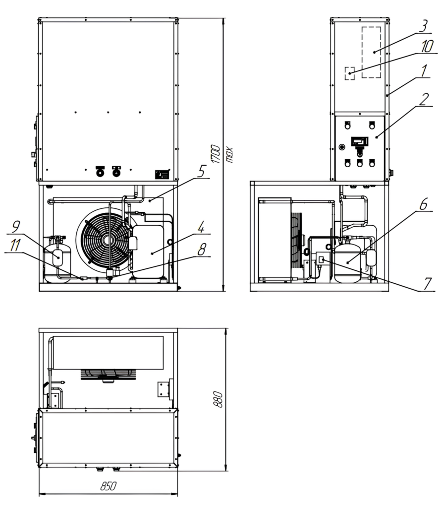
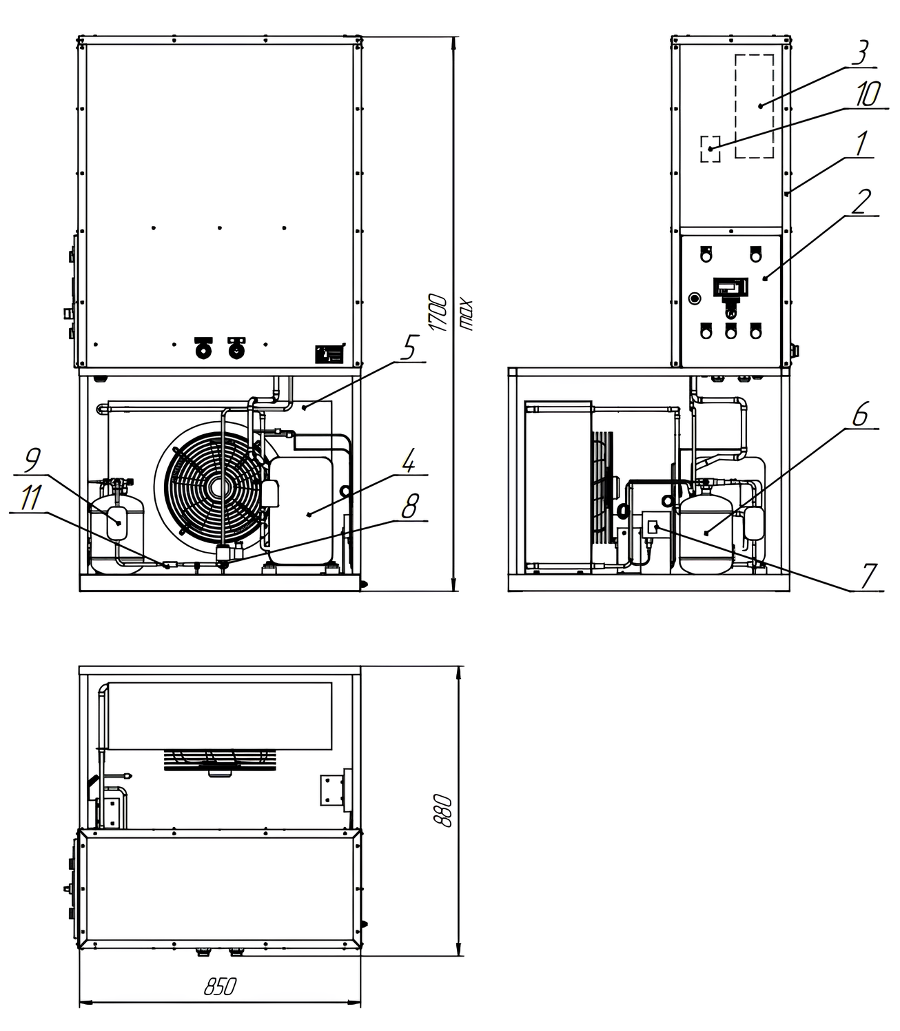
Схема агрегатов поддержания давления АПД-4

1 – Рама; 2 – Шкаф управления агрегатом; 3 – Теплообменник;
4 – Компрессор; 5- Воздушный конденсатор; 6- Ресивер; 7- Реле давления; 8 – Соленоидный вентиль; 9 – Фильтр-осушитель; 10 – Терморегулирующий вентиль; 11 – Смотровое стекло.

1 – Рама; 2 – Шкаф управления агрегатом; 3 – Теплообменник пластинчатый;
4 – Компрессор; 5 – Воздушный конденсатор; 6 – Ресивер; 7 – Реле давления;
8 – Соленоидный вентиль; 9 – Фильтр-осушитель; 10 – Терморегулирующий вентиль;
11 – Смотровое стекло.
Срок эксплуатации АПД 4 – 10 лет. На все агрегаты АПД предоставляется гарантия 2 года.
Свяжитесь со специалистами СпецКриоГаз +7 (343) 226 92 90 чтобы мы подобрали оптимальную модификацию АПД-4,0 для вашего криогенного оборудования.








