Описание
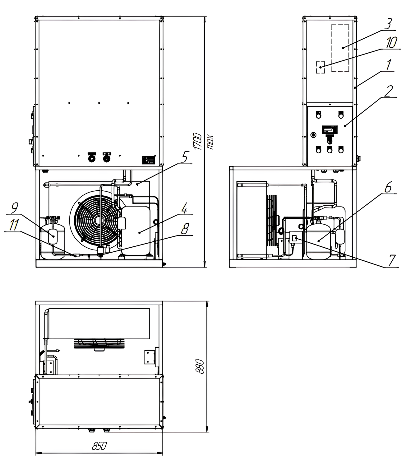
Агрегат поддержания давления АПД-25,0 предназначен для автоматического поддержания рабочего давления в резервуарах хранения и транспортных цистернах с жидкой углекислотой с рабочим давлением от 18 кгс/см2. Оборудование исключает потери продукта вследствие естественного испарения и обеспечивает неограниченный срок хранения с сохранением качества CO₂. Агрегат применяется на промышленных объектах различных отраслей – от пищевого производства до металлургических комбинатов. Совместим со стационарными резервуарами типа РДХ объемом до 25 м³ и транспортными цистернами ЦЖУ.
Особенности эксплуатации АПД
- Полностью автоматизированный рабочий цикл без участия оператора
- Принцип действия основан на конденсации паровой фазы CO₂ поверхностью теплообменника
- Индивидуальный расчет производительности под параметры конкретной емкости
- Соответствие требованиям технических регламентов ЕАЭС
- Работа с углекислотой высшего и первого сорта по ГОСТ 8050-85
- Компенсация внешних теплопритоков и стабилизация температурного режима
Модификации АПД
+ Внутреннее исполнение – для резервуаров со штатными трубчатыми теплообменниками (вертикальных и горизонтальных)
+ Внешнее исполнение – комплектуется автономным компрессорно-конденсаторным блоком и пластинчатым теплообменником для емкостей без встроенных систем охлаждения
Альтернативные решения
Традиционные методы регулирования давления (атмосферный сброс пара, электрические испарители) характеризуются значительными потерями криопродукта, повышенным энергопотреблением и нестабильностью рабочих параметров. АПД-25,0 демонстрирует максимальную эффективность, полностью исключая потери CO₂ и обеспечивая оптимальные условия хранения.
Сервисное обслуживание и гарантии
Гарантийный срок эксплуатации составляет 2 года с момента ввода оборудования в эксплуатацию. Агрегат АПД может устанавливаться на монтажную раму для удобства эксплуатации и обслуживания.
Производитель обеспечивает техническую поддержку и сервисное обслуживание на протяжении всего жизненного цикла оборудования. Для подбора конфигурации и расчета параметров агрегата необходимо предоставить информацию о объёме емкости и рабочем давлении в системе.
Для оформления заказа и консультации обращайтесь в СпецКриоГаз: +7 (343) 226-92-90.










